Elegantní řešení elektromobility v Lovosicích
29. 11. 2021 | Ing. Radek Stavarčík | BETONBAU, s. r. o. | www.betonbau.cz
Elektromobilita klade značné nároky na výrobu a distribuci elektrické energie. V Lovosicích vzniklo unikátní řešení, které posunulo českou elektromobilitu na vyšší úroveň.
Elektromobilita klade značné nároky na výrobu a distribuci elektrické energie. V Lovosicích vzniklo unikátní řešení, které posunulo českou elektromobilitu na vyšší úroveň.
Veškerá elektrická energie se vyrábí bez emisí v malé vodní elektrárně Píšťany na řece Labi (obr. 1). Tato jezová elektrárna byla uvedena do provozu v září roku 2010. Je osazena čtyřmi Kaplanovými turbínami. Její výkon činí 2 930 kW a hltnost turbín dosahuje 200 m3/s.

Obr. 1. Malá vodní elektrárna Píšťany
Elektrická energie se přivádí z druhého břehu Labe pomocí kabelu uloženého pod říčním dnem. Kabel je následně uložen v zemi a vede k trafostanici, kde se vysoké napětí 22 kV transformuje na nízké 400 V.
Konstrukci trafostanice od společnosti BETONBAU tvoří bezesparé betonové těleso odlité metodou tzv. zvonového lití. Vodotěsný beton odolný agresivnímu prostředí brání průniku vody a vlhkosti dovnitř. Betonová olejová jímka zase zachytí únik oleje v případě havárie transformátoru (obr. 2).

Obr. 2. Trafostanice BETONBAU, Obr. 3. Trafostanice, dveře METALBAU
„Bezpečnost naší trafostanice zajišťuje ucelený systém s přesně definovanými prvky“, říká Ing. Miroslav Morávek, obchodní ředitel BETONBAU. „Jde o betonový korpus, dveře, větrací prvky na fasádě a speciální podlahovou konstrukci. Betonový korpus je staticky navržen tak, aby odolal účinkům vnitřního přetlaku. Stejně tak musí být odolná konstrukce dveří a větracích prvků. Tyto komponenty sami vyrábíme pod značkou METALLBAU. Důležitý je i podlahový rám s deskami, zámky a příložníky. Celý tento systém s konkrétními typy výrobků vždy testujeme na účinky obloukového zkratu v nezávislé zkušebně. Výsledky zkoušek pak dokládáme vystavenými certifikáty.“
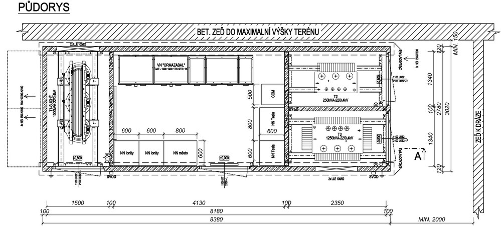
Trafostanice BETONBAU transformuje vysoké napětí hned pro tři zákazníky (obr. 4). Olejový transformátor o výkonu 1 250 kVA je určen pro společnost Tesla. Suchý transformátor s výkonem 1 000 kVA slouží firmě Ionity. Třetí a nejmenší transformátor je olejový a svým výkonem 250 kVA zabezpečuje dodávku energie pro město.

Obr. 4. Půdorys trafostanice

Obr. 5. Nabíječky Tesla

Obr. 6. Nabíječky Ionity (foto: iDNES.cz)
K nabíjení elektromobilů je připraveno dvanáct ultrarychlých stojanů. Osm z nich patří společnosti Tesla (obr. 5), čtyři společnosti Ionity (obr. 6). Václav Nývlt, redaktor automobilového magazínu Idnes.cz, popisuje svou zkušenost s nabíjením svého Audi e-Tron GT takto: „Nabíjení se rozbíhá, během pěti minut máme energii na dalších 100 kilometrů cesty. O dalších šest minut později na 200 kilometrů cesty, o dalších 10 minut později na 300 kilometrů cesty. Za 21 minut jsme doplnili 300 kilometrů dojezdu, do ovzduší přitom neunikl ani gram CO2, ani jiné nechtěné emise.“
(foto: BETONBAU a iDNES.cz)